Immobiliendetails

Vielseitige Kombination aus Büro- und Multifunktionsfläche

Objekt Nr. 1005-MF
Miet- / Kaufobjekt Miete
Objektart Büro/Praxen
Verfügbar ab 11-2025
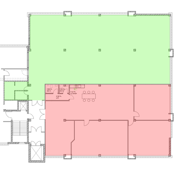
Bürofläche- / Praxisfläche 670 m²
teilbar ab 310 m²
Nebenkosten pro m² 1,50 €
Anzahl Stellplätze 10
Provision 2 Monatsmieten zzgl. 19 % USt.
Aufzug Ja
wesentlicher Energieträger Öl
DV Verkabelung vorhanden Ja
Objekt Nr. 1005-MF Miet- / Kaufobjekt Miete
Objektart Büro/Praxen Verfügbar ab 11-2025
Bürofläche- / Praxisfläche 670 m² teilbar ab 310 m²
Nebenkosten pro m² 1,50 € Anzahl Stellplätze 10
Provision 2 Monatsmieten zzgl. 19 % USt. Aufzug Ja
wesentlicher Energieträger Öl DV Verkabelung vorhanden Ja
Objektbeschreibung: Das Gebäude befindet sich in ruhiger Randlage im Gewerbegebiet in Ostfildern-Ruit.
Zur Vermietung kommt eine Mieteinheit im Obergeschoss mit einer Gesamtfläche von 670 m².
Die Mietfläche ist multifunktional als Büro, Lager, Labor, Werkstatt oder Showroom nutzbar.
Die Mieteinheit kann in Teilflächen ab ca. 310 m² angemietet werden.
Der Mietflächenzugang ist über eine Treppe, den Personenaufzug sowie einem großen Lastenaufzug möglich.
Das Gebäude wurde umfassend energetisch saniert. Dadurch sehr geringe Nebenkosten von nur 1,50 Euro/m².
Lage: - zur A 8: 10 Minuten
- zur U7/U: 8 Gehminuten, Bus: 500 m
- zum Flughafen Stuttgart / Messe: 15 Minuten
- zur Innenstadt Stuttgart: 15 Minuten
Ausstattung: - variable Raumaufteilung
- Personenaufzug
- Lastenaufzug mit Außenzugang (2000 kg)
- Maße Aufzug: 2.5 m Tiefe, 2.0 m Höhe, 1.65 m Durchgangsbreite
- Zugang über die Außenfassade (2.25 x 2.6 m)
- Netzwerk-Verkabelung
- neue Decke inklusive LED-Beleuchtung
- neuer Boden
- Teeküche
- D-WC, H-WC je Mieteinheit
- Starkstrom
- neuwertige Fenster
- Außenparkplätze
- E-Ladestation
- Glasfaseranschluss vorhanden
Sonstiges: Die Vermittlung erfolgt durch:
Immobilien Schmidt GmbH
Gewerbe- und Industrieimmobilien
Tel.: 0711-340308-80
E-Mail: info@gewerbeimmobilien-schmidt.de
Web: www.gewerbeimmobilien-schmidt.de
Mietpreise verstehen sich als Nettomietpreise (zzgl. gesetzl. MwSt. & Betriebskosten). Alle Angaben basieren auf Informationen, die uns von unserem Auftraggeber zur Verfügung gestellt wurden. Wir übernehmen daher keine Gewähr für deren Richtigkeit, Vollständigkeit und Aktualität. Flächen- und Längenangaben sind ca. Angaben.

Weitere interessante Immobilien

3 Angebote gefunden

Suche ändern

Am S-Bahnhof Leinfelden, EG-Lage mi ...

70771 Leinfelden-Echterdingen / Leinfelden
Büro- / Praxisfläche 167 m²

Büro- und Servicefläche im EG mit v ...

70567 Stuttgart-Möhringen
Büro- / Praxisfläche 160 m²
Preis pro m²: 12,75 €

Klimatisierte und moderne Bürofläch ...

70567 Stuttgart-Möhringen
Büro- / Praxisfläche 211 m²
Preis pro m²: 15,80 €

Kontakt

info@gewerbeimmobilien-schmidt.de
Tel.: 0711-340308-80