Immobiliendetails

Bürogebäude, teilweise vermietet, in guter Lage von Echterdingen

Objekt Nr. 1413-V
Miet- / Kaufobjekt Kauf
Objektart Büro/Praxen
Verfügbar ab kurzfristig
Bürofläche- / Praxisfläche 1.750 m²
Anzahl Stellplätze 28
Provision Wir möchten darauf hinweisen, dass mit Abschluss eines Kaufvertrages Ihrerseits eine Käuferprovision in Höhe von 4,76 % vom Kaufpreis inkl. der gesetzlichen MwSt. zur Zahlung fällig wird.
Klimaanlage Ja
Keller Ja
wesentlicher Energieträger Gas
DV Verkabelung vorhanden Ja
Objekt Nr. 1413-V Miet- / Kaufobjekt Kauf
Objektart Büro/Praxen Verfügbar ab kurzfristig
Bürofläche- / Praxisfläche 1.750 m² Anzahl Stellplätze 28
Provision Wir möchten darauf hinweisen, dass mit Abschluss eines Kaufvertrages Ihrerseits eine Käuferprovision in Höhe von 4,76 % vom Kaufpreis inkl. der gesetzlichen MwSt. zur Zahlung fällig wird. Klimaanlage Ja
Keller Ja wesentlicher Energieträger Gas
DV Verkabelung vorhanden Ja
Objektbeschreibung: In Kooperation mit SGI Immobilien Management bieten wir dieses interessante Anlageobjekt zum Ankauf an.
Das repräsentative, fünfgeschossige Bürogebäude befindet sich im Gewerbegebiet Echterdingen-Süd in Leinfelden-Echterdingen.
Das Gebäude wurde im Jahr 1971/72 in Stahlbetonskelettbauweise erbaut und 1995 durch eine Aufstockung des 4. Obergeschosses erweitert. Im selben Jahr erhielt das Gebäude einen repräsentativen Eingangsbereich mit Treppenhaus und Aufzugsanlage mit ebenerdigem Außenzugang. Weiterhin wurde eine Fassadenerneuerung durchgeführt.
Auf dem 1.029 m² großen Grundstück stehen insgesamt 28 Pkw-Stellplätze zur Verfügung.
Der gesamte Außenbereich wurde in 2023 saniert.

Baujahr, Mietflächenübersicht:
- Baujahr 1971/72, Aufstockung u. Modernisierung 1995
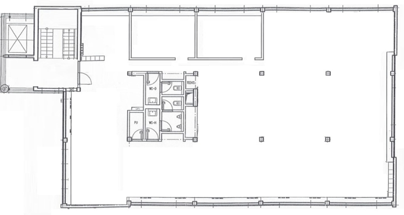
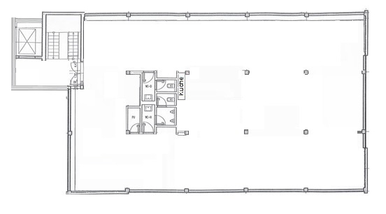
- EG bis 4. OG: ca. 1.750 m² Büromietfläche
- UG: ca. 205 m² Lagermietfläche
- Gesamtmietfläche: ca. 1.955 m²
- 28 PKW-Außenstellplätze

Vermietungssituation:
- Vermietet: UG (ca. 205 m²), 2. OG (ca. 355 m²), 3. OG (ca. 355 m²) und 4. OG (ca. 345 m²) sowie 17 Stellplätze
- Frei: EG (ca. 340 m²) und 1. OG (ca. 355 m²) sowie 11 Stellplätze
Lage: Leinfelden-Echterdingen ist eine Stadt in Baden-Württemberg, direkt südlich der Landeshauptstadt Stuttgart. Sie gehört zur Region Stuttgart und zur europäischen Metropolregion Stuttgart

Das repräsentative Bürogebäude befindet sich im Gewerbegebiet Echterdingen-Süd in Leinfelden-Echterdingen. Bus und S-Bahn sind in wenigen Minuten zu Fuß zu erreichen. Über die B27 und die A8 ist Echterdingen aber auch für den Individualverkehr perfekt an das Straßennetz angebunden.

Der Flughafen Stuttgart einschließlich der zugehörigen S-Bahn-Station und dem geplanten Fernbahnhof liegt im Osten des Stadtgebietes von Leinfelden-Echterdingen und ist in wenigen Minuten mit dem PKW oder dem öffentlichen Nahverkehr zu erreichen.
Ausstattung: - Anschlüsse über Fensterbankbrüstungskanal
- CAT 7 Netzwerkverkabelung
- moderne Klimaanlage für die Etagen EG bis 3. OG
- separate Kühlungsanlage für das 4. OG
- elektrische Außenjalousien
- abgehängte Decken inkl. Beleuchtung
- Personenaufzug mit ebenerdigem Außenzugang
- neu angelegter Außenbereich mit insg. 28 Außenstellplätzen
- zentraler Serverraum im UG
- Archivräume

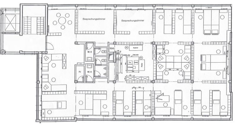
Die Mietflächen im 2. und 3. Obergeschoss wurden von dem Mieter hochwertig ausgebaut und ausgestattet. Es wurden u.a. folgende Baumaßnahmen durchgeführt:
- Erneuerung der Elektroinstallation und Datenverkabelung
- Erneuerung der Sanitärbereiche
- Einbau von Glastrennwänden für Einzelbüros und Besprechungsraum
- Neue Einbauküche in der Teeküche
- Neue Zugangsbrandschutztüre (Alu-Glas-Türe) eingebaut

Eine genaue Ausstattungsbeschreibung lassen wir ihnen hierzu gerne zukommen.
Sonstiges: Die Vermittlung erfolgt durch Immobilien Schmidt GmbH und SGI Immobilien Management.
Beide Unternehmen stehen Ihnen gerne für weitere Auskünfte zur Verfügung.

Kontakt Immobilien Schmidt GmbH:
Gewerbe- und Industrieimmobilien
Tel.: 0711-340308-80
E-Mail: info@gewerbeimmobilien-schmidt.de
Web: www.gewerbeimmobilien-schmidt.de

Kontakt SGI Immobilien Management:
Tel.: 07151-2780231
E-Mail: info@geisinger-immobilien.de
Web: www.geisinger-immobilien.de

Mit Abschluss eines Kaufvertrages durch unseren Nachweis bzw. unsere Vermittlung wird Ihrerseits eine Käuferprovision in Höhe von 4,76 % vom Kaufpreis inkl. der gesetzlichen MwSt. zur Zahlung fällig.

Bei mehreren Kaufinteressenten entscheidet das höchste Kaufangebot. Gegenangebote leiten wir gerne weiter.

Alle in diesem Exposé gemachten Angaben basieren auf Informationen Dritter.
Bitte beachten Sie, dass wir daher keine Haftung für die Richtigkeit bzw. Vollständigkeit übernehmen können.

Widerrufsbelehrung für Verbraucher:

Sie haben das Recht, binnen vierzehn Tagen ohne Angaben von Gründen diesen Vertrag zu widerrufen. Die Widerrufsfrist beträgt vierzehn Tage ab dem Tag des Vertragsabschlusses.

Um Ihr Widerrufsrecht auszuüben, müssen Sie uns mit einer eindeutigen Erklärung (Brief, Fax oder E-Mail) über Ihren Entschluss, diesen Vertrag zu widerrufen, informieren.

Weitere interessante Immobilien

3 Angebote gefunden

Suche ändern

Repräsentative 215 m² Büro-/Praxise ...

70771 Leinfelden-Echterdingen
Büro- / Praxisfläche 215 m²
Kaufpreis: 516.000 €

641 m² Bürofläche mit Rampenzugang, ...

73760 Ostfildern
Büro- / Praxisfläche 641 m²

Am S-Bahnhof Leinfelden, EG-Lage mi ...

70771 Leinfelden-Echterdingen / Leinfelden
Büro- / Praxisfläche 167 m²

Kontakt

info@gewerbeimmobilien-schmidt.de
Tel.: 0711-340308-80