Immobiliendetails

424 m² Büro-/Praxisfläche im Schillerhaus im Zentrum von Stuttgart-Vaihingen

Objekt Nr. 1489-01
Miet- / Kaufobjekt Miete
Objektart Büro/Praxen
Verfügbar ab kurzfristig
Bürofläche- / Praxisfläche 424 m²
Mietpreis pro m² 12,50 €
Nebenkosten pro m² 3,50 €
Anzahl Stellplätze 5
Klimaanlage Ja
Keller Ja
DV Verkabelung vorhanden Ja
Objekt Nr. 1489-01 Miet- / Kaufobjekt Miete
Objektart Büro/Praxen Verfügbar ab kurzfristig
Bürofläche- / Praxisfläche 424 m² Mietpreis pro m² 12,50 €
Nebenkosten pro m² 3,50 € Anzahl Stellplätze 5
Klimaanlage Ja Keller Ja
DV Verkabelung vorhanden Ja
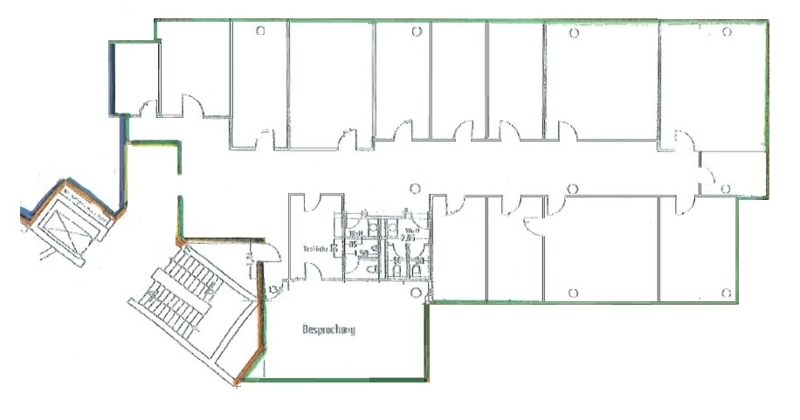
Objektbeschreibung: Zur Neuvermietung kommt im Zentrum von Stuttgart-Vaihingen im "Schillerhaus" eine 424 m² Büro-/Praxisfläche inklusive 5 TG-Stellplätzen sowie 25 m² Kellerfläche.
Das Gebäude verfügt über 5 Obergeschosse sowie eine Tiefgarage.

Die Büro-/Praxisfläche befindet sich im Obergeschoss und verfügt aktuell über 13 Büros, hiervon 7 Einzelbüros sowie 6 größere Büros, nutzbar als Meetingraum oder Gruppenbüro.
Der Grundriss ist variabel und kann Ihren Bedürfnissen angepasst werden
Die Mieteinheit verfügt momentan über einen offen gestalteten Empfang.
Lage: - U-Bahn: Station Schillerplatz, vor dem Gebäude
- S-Bahn: Bahnhof S-Vaihingen, 4 Gehminuten
- Bushaltestelle: Haltestelle Schillerplatz
- A8: 10 Minuten
- Flughafen: 12 Minuten
Ausstattung: - 424 m² Büro- oder Praxisfläche
- 5 TG-Stellplätze
- 25 m² Archiv-/Lagerfläche im UG
- elektrische Außenjalousien
- innenliegender Blendschutz als Lamellenvorhang
- abgehängte Decken inkl. Deckenleuchten im Flurbereich
- Teppichboden nach Mieterwunsch
- CAT5 Netzwerk-Verkabelung
- Küche
- vollständig barrierefrei (Aufzug, automatische Türen)
- Hausmeisterservice
- Videoüberwachung der Eingangsbereiche
Sonstiges: Die Vermittlung erfolgt durch:
Immobilien Schmidt GmbH
Gewerbe- und Industrieimmobilien
Tel.: 0711-340308-80
E-Mail: info@gewerbeimmobilien-schmidt.de
Web: www.gewerbeimmobilien-schmidt.de

Mietpreise verstehen sich als Nettomietpreise (zzgl. gesetzl. MwSt. & Betriebskosten). Alle Angaben basieren auf Informationen, die uns von unserem Auftraggeber zur Verfügung gestellt wurden. Wir übernehmen daher keine Gewähr für deren Richtigkeit, Vollständigkeit und Aktualität. Flächen- und Längenangaben sind ca. Angaben.

Weitere interessante Immobilien

3 Angebote gefunden

Suche ändern

Büro-/Praxiseinheit mit 2 Parkplätz ...

70771 Leinfelden-Echterdingen / Echterdingen
Büro- / Praxisfläche 200 m²
Kaufpreis: 530.000 €

210 / 250 m² Büroeinheit in LE-Ober ...

70771 Leinfelden-Echterdingen / Oberaichen
Büro- / Praxisfläche 250 m²

424 o. 602 m² Büro-/Praxisfläche im ...

70563 Stuttgart / Vaihingen
Büro- / Praxisfläche 602 m²
Preis pro m²: 12,50 €

Kontakt

info@gewerbeimmobilien-schmidt.de
Tel.: 0711-340308-80