Immobiliendetails

350 oder 700 m² klimatisierte Bürofläche in guter Lage von Echterdingen

Objekt Nr. 1413-705
Miet- / Kaufobjekt Miete
Objektart Büro/Praxen
Verfügbar ab kurzfristig
Bürofläche- / Praxisfläche 705 m²
Mietpreis pro m² 10,85 €
Nebenkosten pro Monat 2,70 €
Nebenkosten pro m² 2,70 €
Mietpreis pro Stellplatz 65 €
Keller Ja
wesentlicher Energieträger Gas
Objekt Nr. 1413-705 Miet- / Kaufobjekt Miete
Objektart Büro/Praxen Verfügbar ab kurzfristig
Bürofläche- / Praxisfläche 705 m² Mietpreis pro m² 10,85 €
Nebenkosten pro Monat 2,70 € Nebenkosten pro m² 2,70 €
Mietpreis pro Stellplatz 65 € Keller Ja
wesentlicher Energieträger Gas
Objektbeschreibung: Das repräsentative, fünfgeschossige Bürogebäude befindet sich im Gewerbegebiet Echterdingen-Süd in 70771 Leinfelden-Echterdingen.
Eine hochwertige Außenfassade, bestehend aus Glasflächen und Aluminium sowie ein hochwertig ausgeführter Eingangsbereich bieten einen perfekten Empfang für Ihre Besucher.
Das Gebäude ist klimatisiert und mit einer CAT 7 Netzwerkverkabelung ausgestattet.
Der Flughafen, die Messe und das Internationale Kongresscenter sind ca. 2 Autominuten entfernt.
Im direkten Umfeld befinden sich zahlreiche Einkaufsmöglichkeiten,
Lage: - S-Bahn Echterdingen: 700 m, 8 Gehminuten
- Bus: 50 m
- Anbindung B27/A8: 1 km
- Flughafen Stuttgart: 3 km
- Hauptbahnhof Stuttgart: 12 km
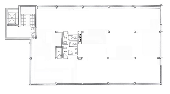
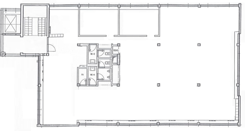
Ausstattung: - 2 Mieteinheiten, 350 und 355 m² Bürofläche
- Ausbau der Bürofläche in Abstimmung mit dem neuen Mieter
- IT und Stromversorgung über Bodentanks und Fensterbankkanäle
- CAT 7 Netzwerkverkabelung
- moderne Klimaanlage
- elektrische Außenjalousien
- abgehangene Decke inkl. Beleuchtung
- barrierefreier Zugang
- Personenaufzug mit zusätzlichen Außenzugang
- 6 Außenparkplätze
- Besucherparkplätze
- zentraler Serverraum
Sonstiges: Die Vermittlung erfolgt im Alleinauftrag durch:
Immobilien Schmidt GmbH
Gewerbe- und Industrieimmobilien
Tel.: 0711-340308-80
E-Mail: info@gewerbeimmobilien-schmidt.de
Web: www.gewerbeimmobilien-schmidt.de

Mietpreise verstehen sich als Nettomietpreise (zzgl. gesetzl. MwSt. & Betriebskosten). Alle Angaben basieren auf Informationen, die uns von unserem Auftraggeber zur Verfügung gestellt wurden. Wir übernehmen daher keine Gewähr für deren Richtigkeit, Vollständigkeit und Aktualität. Flächen- und Längenangaben sind ca. Angaben.

Weitere interessante Immobilien

3 Angebote gefunden

Suche ändern

Repräsentative 215 m² Büro-/Praxise ...

70771 Leinfelden-Echterdingen
Büro- / Praxisfläche 215 m²
Kaufpreis: 516.000 €

641 m² Bürofläche mit Rampenzugang, ...

73760 Ostfildern
Büro- / Praxisfläche 641 m²

Am S-Bahnhof Leinfelden, EG-Lage mi ...

70771 Leinfelden-Echterdingen / Leinfelden
Büro- / Praxisfläche 167 m²

Kontakt

info@gewerbeimmobilien-schmidt.de
Tel.: 0711-340308-80