Immobiliendetails

Von 466 bis 3180 m², neu renoviert, Datenanbindung an das Glasfasernetz

Objekt Nr. 1185-1060
Miet- / Kaufobjekt Miete
Objektart Büro/Praxen
Verfügbar ab Frühjahr 2019
Bürofläche- / Praxisfläche 1.060 m²
Mietpreis pro m² 9,50 €
Nebenkosten pro Monat 2,50 €
Nebenkosten pro m² 2,50 €
wesentlicher Energieträger Gas
Objekt Nr. 1185-1060 Miet- / Kaufobjekt Miete
Objektart Büro/Praxen Verfügbar ab Frühjahr 2019
Bürofläche- / Praxisfläche 1.060 m² Mietpreis pro m² 9,50 €
Nebenkosten pro Monat 2,50 € Nebenkosten pro m² 2,50 €
wesentlicher Energieträger Gas
Objektbeschreibung: Der moderne Bürokomplex befindet sich im Gewerbegebiet von Filderstadt-Bonlanden. Zur Vermietung stehen:
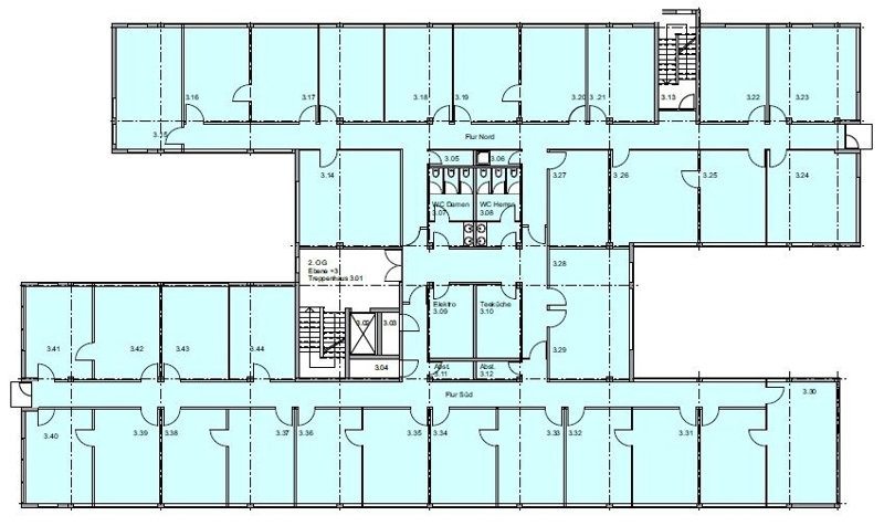
- 1.OG: 1060 m², teilbar in 466 und 524 m²
- 2.OG: 1060 m²
- ausreichend Parkplätze, es steht je 30 m² Mietfläche ein Parkplatz zur Verfügung.

Die Büroflächen sind modern ausgestattet und verfügen über einen effizienten Grundriss.
Die Fassade des Gebäudes sowie die Außenbereiche wurden in 2016 komplett renoviert.

Sie treffen hier auf eine repräsentative Mieterschaft aus den Bereichen Dienstleistung, freie Berufe, Automotive, IT und Gesundheitswesen.Das Umfeld bietet hochwertige Einkaufsmöglichkeiten (EDEKA) sowie einige Mittagstischmöglichkeiten.
Lage: - Gewerbegebiet Filderstadt-Bonlanden
- A8: 5 Minuten
- B27: 1 Minute
- Flughafen/Messe: 6 Minuten
- Innenstadt Stuttgart: 18 Minuten
Ausstattung: - Mieteinheiten ab 466 bis 1060 m²
- variabler Grundriss
- komplett renoviert
- IT/Strom-Verkabelung über Brüstungskanäle
- CAT 7 Verkabelung
- abgehangene Decke mit modernen Einbauleuchten
- Außenjalousien
- Teeküche
- Personenaufzug
- Datenanbindung an das Glasfasernetz
- Außenparkplätze (Besucher)
- Tiefgaragenparkplätze (Mitarbeiter)
Sonstiges: Die Vermittlung erfolgt durch:
Immobilien Schmidt GmbH
Gewerbe- und Industrieimmobilien
Tel.: 0711-65500-59
E-Mail: info@gewerbeimmobilien-schmidt.de
Web: www.gewerbeimmobilien-schmidt.de

Mietpreise verstehen sich als Nettomietpreise (zzgl. gesetzl. MwSt. & Betriebskosten). Alle Angaben basieren auf Informationen, die uns von unserem Auftraggeber zur Verfügung gestellt wurden. Wir übernehmen daher keine Gewähr für deren Richtigkeit, Vollständigkeit und Aktualität. Flächen- und Längenangaben sind ca. Angaben.

Weitere interessante Immobilien

3 Angebote gefunden

Suche ändern

Am S-Bahnhof Leinfelden, EG-Lage mi ...

70771 Leinfelden-Echterdingen / Leinfelden
Büro- / Praxisfläche 167 m²

Büro- und Servicefläche im EG mit v ...

70567 Stuttgart-Möhringen
Büro- / Praxisfläche 160 m²
Preis pro m²: 12,75 €

Klimatisierte und moderne Bürofläch ...

70567 Stuttgart-Möhringen
Büro- / Praxisfläche 211 m²
Preis pro m²: 15,80 €

Kontakt

info@gewerbeimmobilien-schmidt.de
Tel.: 0711-340308-80